Listing Tools

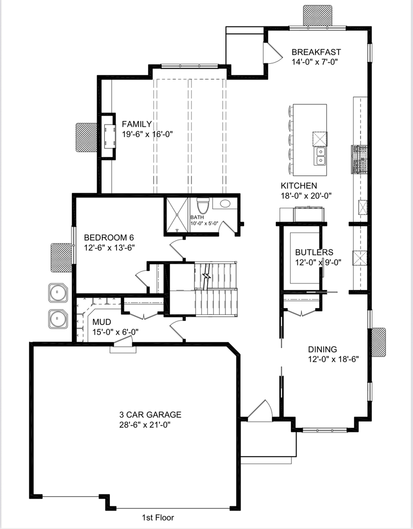
Drywall is installed & flooring installation has started! Walk-throughs are available & now is the time to secure your new home before the Spring Rush- March '26 estimated completion. Luxury New Construction Home CURRENTLY being built and delivered by Seasoned Downers Grove Custom Builder. Exceptional High Quality Built Home in the Heart of Downers Grove. PREPARE TO BE IMPRESSED! 4,067 SQ ABOVE GRADE (1st & 2nd Floors) with 6 Bedrooms, 4 Full Bathrooms, and 3 Car Attached Garage situated on an ideal 60 FT wide lot. Meticulously designed High End Home will feature a RARE layout; 5 Bedrooms on the Second Floor, First Floor Bedroom (#6) & First Floor Full Bath Room with Shower with in-law arrangement option, Grand Dining Room off the Kitchen with pocket doors, Gourmet Chef's Kitchen with Wolf/Sub Zero Appliances, custom cabinetry trimmed to the ceiling with oversized island and Vaulted breakfast eating area, 10FT ceilings on the first floor, Tall 8Ft Solid Core Doors on first floor, upgraded millwork with custom stained beams in the family room, upgraded windows, zoned HVAC with 2 furnaces & 2 ac units, stunning white oak hardwood floors, and deep pour basement roughed for a future full bathroom. Amazing LOCATION! Blocks to Downers Grove Fairview Train Station, 3 Blocks to Lester Elementary School, Hummer Park, Washington Park, within 1 mile to Downers Grove North High School, 1.4 mile to Herrick Middle School & Downtown Downers Grove! Builder financed luxury home with included upgrades and buyer allowances to make selections-timeline sensitive. First floor features solid white oak hardwood floors, custom staircase, First Floor Full Bathroom with custom tile Walk-In Shower, Bedroom with closet, Dining Room with pocket doors walkthrough to the overButler Pantry Dry Bar with beverage fridge, custom cabinetry and walk-in pantry with custom solid shelving. Stunning kitchen features LARGE SCALE island with seating, custom cabinetry with 3rd level cabinets stacked & trimmed to the ceiling, Wolf Double Oven & Sub Zero Refrigerator, quartz countertops & quartz extension backsplash, kitchen under cabinet lighting, and custom wood front panels on refrigerator and dishwasher. Everything about this layout is impressive and thoughtfully designed with custom details throughout. Clean lines with rich details highlighted throughout. Family room showcases dramatic ceiling with 2 beams, built-ins flanking the fireplace with custom shelving, and a truly grand living & entertaining area. Enjoy backyard living with walkout paver patio (400 SF) off the kitchen eating area. First floor includes entryway closet and mud room with custom built-ins off the 3-car garage. Second floor features a luxurious Primary Bedroom Suite with white oak hardwood flooring, ensuite heated tile bathroom with double sink vanity, soaking tub, walk-in shower, & TWO walk-in closets with hardwood floors and solid white shelving closet system. Second floor includes 4 additional bedrooms all with spacious closets and soaring vaulted ceilings. Bedroom #2 & #3 include Jack & Jill ensuite bathroom access with private bathtub shower & water closet room, and bedrooms #4 & #5 utilize the hallway bathroom adjacent with double sink vanity and private shower/water closet room with soaking tub. Second floor includes the laundry room with sink, cabinetry, & linen closet, 2nd furnace mechanical closet, and ample storage. Deep pour basement will include rough-in for a future full bathroom and four windows (unfinished basement). Additional features: low voltage package, roughed for EV outlet in garage, lighting allowance, Kohler Water Fixtures, exterior patio gas line, & more! Award Winning Lester Elementary School, Herrick Middle, & Downers Grove North High School. Photos are of a very similar recent build and DO REFLECT similar materials and high quality.

Property Details of 416 Chicago Avenue

Property Details

Interior Features

Utilities and Appliances

Community

Other Details

Map Location

Driving Directions

Listed by Natalie Weber of Keller Williams Experience ((630) 915-1449)

Based on information submitted to MRED  as of November 13, 2025 . All data is obtained from various sources and has not been, and will not be, verified by broker or MRED.   All information should be independently reviewed and verified for accuracy.  Properties may or may not be listed by the office/agent presenting the information. NOTICE: Many homes contain recording devices, and buyers should be aware they may be recorded during a showing.

Hi there! How can we help you?

Contact us using the form below or give us a call.

Send Us A Message:

I agree to receive marketing and customer service calls and text messages from Mary Braatz | RE/MAX Enterprise. To opt out, you can reply 'stop' at any time or click the unsubscribe link in the emails. Consent is not a condition of purchase. Msg/data rates may apply. Msg frequency varies. Privacy Policy.

Do not fill in this field:

This site is protected by reCAPTCHA and the Google Privacy Policy and Terms of Service apply.

Hi there! How can we help you?

Contact us using the form below or give us a call.

Send Us A Message:

Do not fill in this field:

This site is protected by reCAPTCHA and the Google Privacy Policy and Terms of Service apply.

Hi there! How can we help you?

Contact us using the form below or give us a call.

Send Us A Message:

Do not fill in this field:

This site is protected by reCAPTCHA and the Google Privacy Policy and Terms of Service apply.

Do not fill in this field:

This site is protected by reCAPTCHA and the Google Privacy Policy and Terms of Service apply.

Do not fill in this field:

This site is protected by reCAPTCHA and the Google Privacy Policy and Terms of Service apply.

Do not fill in this field:

This site is protected by reCAPTCHA and the Google Privacy Policy and Terms of Service apply.

$

Do not fill in this field:

This site is protected by reCAPTCHA and the Google Privacy Policy and Terms of Service apply.