Listing Tools

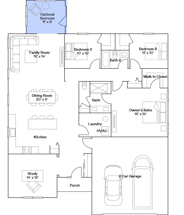
READY FOR JANUARY DELIVERY!!!! Homesite# 0026 Discover the Sonoma, an inviting single-story home expertly designed to elevate everyday living through thoughtful details and modern comfort. This spacious floor plan features three bedrooms and two full bathrooms within an open-concept layout that seamlessly connects the kitchen, family room, and dining area-creating an ideal setting for both quiet nights in and lively gatherings with guests. The kitchen serves as the heart of the home, showcasing a large center island, Quartz countertops, stainless steel appliances, and ample cabinetry-perfect for everything from daily meal prep to casual entertaining. A versatile private study adds flexibility, offering the perfect space for a home office, reading room, or creative nook. The owner's suite is a serene retreat, complete with a generous walk-in closet and a private en-suite bathroom designed for relaxation. Two additional bedrooms and a full shared bathroom provide comfortable accommodations for family members or visitors, ensuring everyone has their own space to unwind. Designed with quality and comfort in mind, the Sonoma includes 9-foot ceilings, luxury vinyl plank flooring, plush carpeting, Deluxe shower upgrades, smart-height water-saving commodes, and many other premium features to enhance your daily life. With its balance of style, function, and flexibility, the Sonoma is the perfect home for modern living. (pic for reference ONLY) *Photos are not this actual home* Experience the perfect blend of comfort, convenience, and outdoor living at Prairie Meadows, a charming new community offering low-maintenance ranch-style homes in the vibrant suburbs of Aurora, Illinois. Thoughtfully designed for effortless living and a love of nature, Prairie Meadows delivers a lifestyle centered on relaxation, recreation, and meaningful community connection. This thoughtfully planned neighborhood will feature a scenic park and playground, modern pickleball courts, a welcoming picnic shelter, fire pit, and comfortable seating areas, along with approximately 15 acres of open space to enjoy fresh air and the natural surroundings. Living at Prairie Meadows means you're just minutes from some of Aurora's most popular attractions. Downtown's RiverEdge Park offers outdoor festivals, an amphitheater, and scenic trails along the Fox River, making it a go-to destination for entertainment and relaxation. For shopping enthusiasts, the Chicago Premium Outlets is a premier open-air retail center featuring more than 170 designer brands, seasonal events, and unbeatable deals. Golfers will love the nearby Orchard Valley Golf Course, a beautifully maintained 18-hole championship course perfect for both casual and competitive play, complete with a welcoming clubhouse for dining and socializing.

Property Details of 378 South Cottrell Lane

Property Details

Interior Features

Utilities and Appliances

Community

Other Details

Map Location

Driving Directions

Listed by Bill Flemming of Homesmart Connect LLC

Based on information submitted to MRED  as of January 21, 2026 . All data is obtained from various sources and has not been, and will not be, verified by broker or MRED.   All information should be independently reviewed and verified for accuracy.  Properties may or may not be listed by the office/agent presenting the information. NOTICE: Many homes contain recording devices, and buyers should be aware they may be recorded during a showing.

Hi there! How can we help you?

Contact us using the form below or give us a call.

Send Us A Message:

I agree to receive marketing and customer service calls and text messages from Mary Braatz | RE/MAX Enterprise. To opt out, you can reply 'stop' at any time or click the unsubscribe link in the emails. Consent is not a condition of purchase. Msg/data rates may apply. Msg frequency varies. Privacy Policy.

Do not fill in this field:

This site is protected by reCAPTCHA and the Google Privacy Policy and Terms of Service apply.

Hi there! How can we help you?

Contact us using the form below or give us a call.

Send Us A Message:

Do not fill in this field:

This site is protected by reCAPTCHA and the Google Privacy Policy and Terms of Service apply.

Hi there! How can we help you?

Contact us using the form below or give us a call.

Send Us A Message:

Do not fill in this field:

This site is protected by reCAPTCHA and the Google Privacy Policy and Terms of Service apply.

Do not fill in this field:

This site is protected by reCAPTCHA and the Google Privacy Policy and Terms of Service apply.

Do not fill in this field:

This site is protected by reCAPTCHA and the Google Privacy Policy and Terms of Service apply.

Do not fill in this field:

This site is protected by reCAPTCHA and the Google Privacy Policy and Terms of Service apply.

$

Do not fill in this field:

This site is protected by reCAPTCHA and the Google Privacy Policy and Terms of Service apply.