Listing Tools

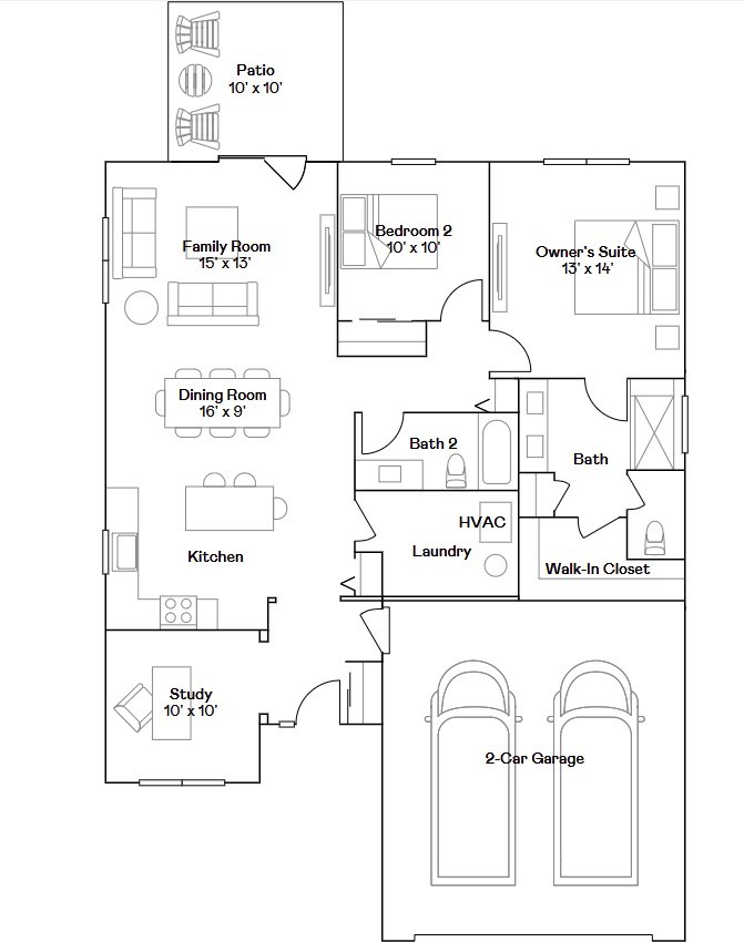
READY FOR MARCH DELIVERY!!!! Homesite# 0004 The Napa is a thoughtfully designed single-story home that perfectly blends modern convenience with comfortable living. This elegant floor plan features two bedrooms, two full bathrooms, and an open-concept layout that seamlessly connects the kitchen, family room, and dining area-creating a welcoming space ideal for both everyday life and entertaining. At the heart of the home, the stylish kitchen showcases a large center island, Quartz countertops, stainless steel appliances, and abundant cabinetry-ideal for meal prep, hosting, or casual dining. A private study provides a flexible space for a home office, reading nook, or creative retreat. Additional conveniences include a dedicated laundry room and a spacious two-car garage for added functionality. The owner's suite offers a tranquil escape, complete with a generous walk-in closet and a luxurious en-suite bathroom. A secondary bedroom and full guest bathroom provide comfortable accommodations for family or visitors. This home also includes 9-foot ceilings, luxury vinyl plank flooring, plush carpeting, Deluxe shower upgrades, smart-height water-saving commodes, and many more premium features designed to enhance your lifestyle. The Napa is a thoughtfully designed single-story home that perfectly blends modern convenience with comfortable living. This elegant floor plan features two bedrooms, two full bathrooms, and an open-concept layout that seamlessly connects the kitchen, family room, and dining area-creating a welcoming space ideal for both everyday life and entertaining. At the heart of the home, the stylish kitchen showcases a large center island, Quartz countertops, stainless steel appliances, and abundant cabinetry-ideal for meal prep, hosting, or casual dining. A private study provides a flexible space for a home office, reading nook, or creative retreat. Additional conveniences include a dedicated laundry room and a spacious two-car garage for added functionality. The owner's suite offers a tranquil escape, complete with a generous walk-in closet and a luxurious en-suite bathroom. A secondary bedroom and full guest bathroom provide comfortable accommodations for family or visitors. This home also includes 9-foot ceilings, luxury vinyl plank flooring, plush carpeting, Deluxe shower upgrades, smart-height water-saving commodes, and many more premium features designed to enhance your lifestyle. Exterior will be Bone Vinyl sidings with Town Hall Brick color. (pic for reference ONLY) *Photos are not this actual home* Experience the perfect blend of comfort, convenience, and outdoor living at Prairie Meadows, a charming new community offering low-maintenance ranch-style homes in the vibrant suburbs of Aurora, Illinois. Thoughtfully designed for effortless living and a love of nature, Prairie Meadows delivers a lifestyle centered on relaxation, recreation, and meaningful community connection. This thoughtfully planned neighborhood will feature a scenic park and playground, modern pickleball courts, a welcoming picnic shelter, fire pit, and comfortable seating areas, along with approximately 15 acres of open space to enjoy fresh air and the natural surroundings. Living at Prairie Meadows means you're just minutes from some of Aurora's most popular attractions. Downtown's RiverEdge Park offers outdoor festivals, an amphitheater, and scenic trails along the Fox River, making it a go-to destination for entertainment and relaxation. For shopping enthusiasts, the Chicago Premium Outlets is a premier open-air retail center featuring more than 170 designer brands, seasonal events, and unbeatable deals. Golfers will love the nearby Orchard Valley Golf Course, a beautifully maintained 18-hole championship course perfect for both casual and competitive play, complete with a welcoming clubhouse for dining and socializing.

Property Details of 433 Cottrell Lane

Property Details

Interior Features

Utilities and Appliances

Community

Other Details

Map Location

Driving Directions

Listed by Bill Flemming of Homesmart Connect LLC

Based on information submitted to MRED  as of February 9, 2026 . All data is obtained from various sources and has not been, and will not be, verified by broker or MRED.   All information should be independently reviewed and verified for accuracy.  Properties may or may not be listed by the office/agent presenting the information. NOTICE: Many homes contain recording devices, and buyers should be aware they may be recorded during a showing.

Hi there! How can we help you?

Contact us using the form below or give us a call.

Send Us A Message:

I agree to receive marketing and customer service calls and text messages from Mary Braatz | RE/MAX Enterprise. To opt out, you can reply 'stop' at any time or click the unsubscribe link in the emails. Consent is not a condition of purchase. Msg/data rates may apply. Msg frequency varies. Privacy Policy.

Do not fill in this field:

This site is protected by reCAPTCHA and the Google Privacy Policy and Terms of Service apply.

Hi there! How can we help you?

Contact us using the form below or give us a call.

Send Us A Message:

Do not fill in this field:

This site is protected by reCAPTCHA and the Google Privacy Policy and Terms of Service apply.

Hi there! How can we help you?

Contact us using the form below or give us a call.

Send Us A Message:

Do not fill in this field:

This site is protected by reCAPTCHA and the Google Privacy Policy and Terms of Service apply.

Do not fill in this field:

This site is protected by reCAPTCHA and the Google Privacy Policy and Terms of Service apply.

Do not fill in this field:

This site is protected by reCAPTCHA and the Google Privacy Policy and Terms of Service apply.

Do not fill in this field:

This site is protected by reCAPTCHA and the Google Privacy Policy and Terms of Service apply.

$

Do not fill in this field:

This site is protected by reCAPTCHA and the Google Privacy Policy and Terms of Service apply.